YABO.COM
咨询热线:
0394-6792297
32年精工制造 21年出口经验
一家专注于锅炉与容器的企业!
网站YABO.COM
产品中心
服务优势
成功案例
生产设备
资质荣誉
新闻资讯
关于我们
YABO.COM
热门关键字:
您的位置:
银晨锅炉
>
新闻资讯
>
行业动态
沙河口区拟新建一热水锅炉 选址已公示
返回列表
来源:银晨锅炉
发布日期:2020-12-25 16:05
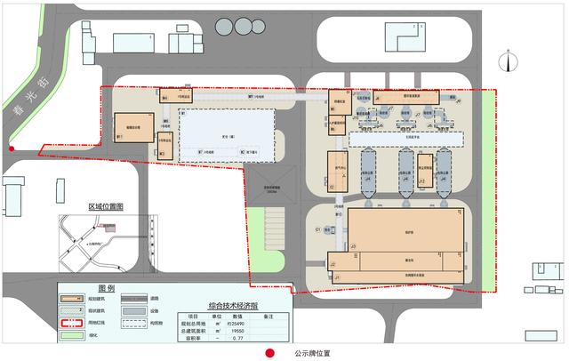
从大连市自然资源局获悉,北海热电厂5X116MW热水锅炉建设项目(一期)规划方案已公示。信息显示,该项目位于沙河口区北海热电厂北侧、春光街东侧,属供应设施用地,规划总用地约为25490㎡,总建筑面积为19550㎡,建设单位为大连热电股份有限公司,设计单位为都市发展设计有限公司。
上一篇:
我市开展专项节能减排行动提升锅炉能效
下一篇:
伊旗市场监督管理局开展锅炉安全检查 全力保障冬季特种设备安全
返回列表
本文链接:
//cosmetichill.com/industry/30706.html
行业动态
全国服务热线
0394-6792297
服务热线
0394-6792297
返回顶部